
大型歌舞《麗江千古情》自2014年在麗江宋城旅游區麗江千古情大劇院公演后,受到觀眾熱烈歡迎,被贊為“麗江文化的魂”,是迄今為止云南省科技含量最高、原生態文化容量最龐大的旅游演藝秀。
超過30種先進舞臺技術與道具裝置,呈現了一場猶如3D電影大片般的現場演出,把“納西創世紀”、“瀘沽女兒國”、“馬幫傳奇”、“木府輝煌”等一幕幕恢弘長卷娓娓道來,凝聚了麗江具有代表性的民俗符號與文化元素。

時隔三年,宋城再度邀約數虎圖像擔任新版《麗江千古情》多媒體舞美視覺設計,為觀眾獻上視覺盛宴,展現麗江靈動之美。與此前LED呈像不同的是,演出在原有的表演架構中,把全息裝置嵌入傳統舞臺。長達17米的全息車臺裝置,通過地面軌道橫移,加上全息后的黑幕投影, 讓新版演出舞美視覺更亦真亦幻,唯美非常,更好的展現麗江“千年”、“納西”、“絲路”、“香巴拉”等特色文化元素。
1內容更新 穿越亦真亦幻的奇妙國度
內容方面,改版后的《麗江千古情》在第三幕《古道今風》中加入了更加濃厚的傣族風情和印度風情,同時舞蹈表演與全息技術完美融合,讓觀眾沉浸在如夢如幻的奇妙國度。


傣族女孩撩起水花輕輕起舞,所踏之處皆幻化成鮮花滿地,她拋下輕紗跳入水中,魚兒紛紛游到她身邊,成群與她共舞。

在如海市蜃樓般的印度沙漠中,法師揮動空氣中的魔法金沙,金沙組成印度美女在飛毯上跳起了肚皮舞,最后,法師一揮手,飛毯沖屏,朝觀眾席上方飛去。


2全息技術幻化多重人影
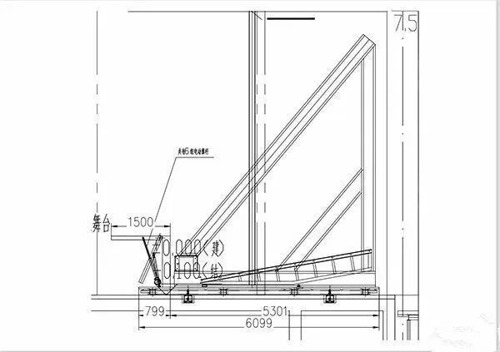
不僅是演出內容更加精致,這次主要是將原第三章“木府輝煌”,全新地改為新編第三章“古道今風”,主要以現代科技的全息結合舞蹈的手法,詮釋今日的“一帶一路”。借助全息鏡像效果,改版后的《麗江千古情》在舞臺設施方面也進行了更新升級。整個全息工程包括全息架、LED屏幕、全息膜和車臺,其中設計團隊使用了一個寬5米,長17米的帶有可轉動車輪的全息車臺。

▲全息工程搭建

▲全息設備設計圖
其中現場聯調的難點,《麗江千古情》幕后制作團隊認為是真人與虛擬影像的配合。具體來說就是,因為全息的鏡像反射原理使其成像介質如透明般,影像能憑空出現在舞臺上,需要做到的是舞臺上真人與憑空特效或與虛假影像演員緊密互動。而為了把虛假影像演員做得逼真,則需要預先還原現場表演的服妝及環境,嚴謹地調試燈光,進行拍攝,制作進影像中。
3升級視頻播控系統 助力演出精彩紛呈
視頻播控系統方面,此次采用實時同步播控,音樂與畫面完美配合。升級后的全息增加了播控系統的通道,優化了播控系統,增加了4個播控系統的通道,一鍵播放。具體來說,以前的音頻和視頻是分開播放的,分別需要不同的工作人員把控,容易出現誤差,優化后的播控系統是一鍵操作,把所有復雜的東西集中在核心里,實現了一鍵播放,操作簡單,節省了現場工作人員的工作量。同時,設計團隊重新優化硬件設備、制作屏幕畫布以及播出的切割方案,大大提高了播控系統的清晰度。


▲舞臺搭建
從《麗江千古情》首演至今,宋城不斷精益求精,力求通過舞臺演出讓觀眾更真切地感受麗江底蘊。在《麗江千古情》改版升級中,數虎圖像將舞美影像與舞臺機械、舞臺設計相結合,為演出注入更加震撼人心的多媒體視覺效果,讓《麗江千古情》更好地展現麗江風情的熾熱與柔美,讓人們在演出中身臨其境感受麗江文化。
免責聲明:本文來源于數虎圖像,本文僅代表作者個人觀點,本站不作任何保證和承諾,若有任何疑問,請與本文作者聯系。