之前,我們為大家介紹了贏康無錫融創樂園項目系列中的《西洋驚濤》黑暗乘騎與8K球幕飛行影院《飛越江蘇》。現在,我們將為大家更新本系列的第三個明星項目——《工廠歷險》·朋克式室內過山車。

無融創樂園的《工廠歷險》是以實景包裝+3D媒體觀影+室內過山車等多重體驗打造的一款蒸汽朋克風格室內游樂項目。
它包含火車劇場與工廠過山車兩個項目,火車劇場是國內少有的火車沉浸式劇場演出,工廠過山車是世界首創結合3D媒體觀影體驗的室內過山車。


該項目側重投影演出與游樂設備的精確互動,既要讓投影內容帶給觀眾身臨其境的感受,又要保證過山車設施與投影,以及四個場景之間的流暢過渡。
贏康為無錫融創《工廠歷險》室內過山車創精心完成了多個場景的光路設計、系統設計、深化設計、綜合布線、設備安裝、系統調試、綜合聯調等工作。
同時,通過贏康提供的十余臺科視投影機,多臺多通道7thSense無損無壓縮媒體服務器,Extron信號傳輸設備、Alcorn娛樂控制系統等產品,為項目打造完美視覺沖擊力,再現復古蒸汽朋克風格。


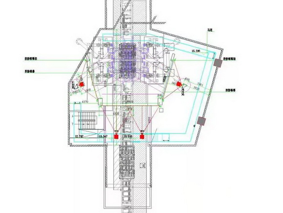
贏康投影設計圖稿(部分)
緊湊的故事劇情,結合驚險有趣的室內過山車,該項目完全滿足了游客視覺、聽覺、觸覺的全方位的超新鮮感觀體驗,讓游客以一個現代人的角度,感受蒸汽時代復古的浪漫與刺激。
免責聲明:本文來源于贏康,本文僅代表作者個人觀點,本站不作任何保證和承諾,若有任何疑問,請與本文作者聯系。